Podpora projektov pre BIM v programe TechCON X - už v predaji !
Projekty vytvorené v TechCONe bude možné exportovať do formátu IFC.
Pre vyžiadanie cenníku nás kontaktujte na:
e-mail: obchod@techcon.sk
tel.: +421 48/416 4196
+421 2/4342 3999
Ako funguje BIM v TechCONe ?
Pokiaľ máte obavu z prechodu na projekty v BIM, netrápte sa !
Všetky projekty, ktoré vytvárate v TechCONe, robíte v BIMu, bez toho, aby ste o tom vedeli, už od roku 2003.
TechCON je totiž na princípe BIMu postavený od základov od roku 2003 :
1. celý projekt kreslíte vždy v 3D
2. projekt skladáte z 3D objektov a každý je naplnený dátami - teda z BIM objektov.
Takže pre vytvorenie projektu BIM v TechCONe nepotrebujete urobiť vôbec nič.
Stačí Vám nakresliť projekt a odladiť výpočty tak, ako to robíte vždy.
Následne odladený projekt jednoducho exportuje do formátu IFC.
TechCON skonvertuje celý projekt do objektov BIM a tie následne uloží do formátu IFC.
Čo je formát IFC ?
Formát IFC je výmenný formát, určený pre projekty v BIMe.
Dá se importovať do programov ako sú Revit, Allplan, Linear, ArchiCAD a pod.
a celú vašu sústavu tak môžete vložiť do existujúcich BIM projektov.
Projekt vo formáte IFC si taktiež môžu Vaši klienti ľahko zobraziť v rôznych bezplatných prehliadačoch.
(ako napr. Autodesk Viewer, SolidWorsk a pod.)
Aké sú výhody exportu z TechCONu oproti priamemu vytvoreniu projektu napr. v Revite ?
Na rozdiel od projektu vytvorenom v Revite, export z programu TechCON obsahuje v BIM objektoch všetky dostupné údaje:
- Základné údaje objektu: poschodie, miestnosť, výšku od podlahy a pod.
- Aktuálne výpočtové údaje objektu: teplota vody, prietok, rýchlosť prúdenia, nastavenie ventilu a pod.
- Komplexné technické údaje objektu: drsnosť potrubia, materiál, tepelná vodivosť, výkony, súčiniteľa a pod.
Pre každý BIM objekt v TechCONe je navyše možné:
- zvoliť ktoré vlastnosti sa majú exportovať
- pridať ľubovoľný počet vlastností pre každý BIM objekt nezávisle
Exportom do IFC to však zďaleka nekončí !
Keďže sa jedná o rozsiahlu problematiku a časovo náročné riešenie, rozdelili sme vývoj pre podporu BIM na viac fáz
tak, aby sme mohli prinášať podporu pre BIM priebežne.
Plán vývoja modulu BIM v programe TechCON:
| 1. Fáza – rok 2023 | Export projektu vykurovania, vodovodu a kanalizácie do formátu IFC |
| 2. Fáza – rok 2024 | Funkcie pre riešenie kolízií a obchádzanie potrubí, medziúrovňové poschodia, reálne výšky podlaží sa zohľadnením výšok konštrukcií podláh |
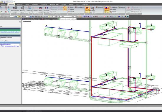
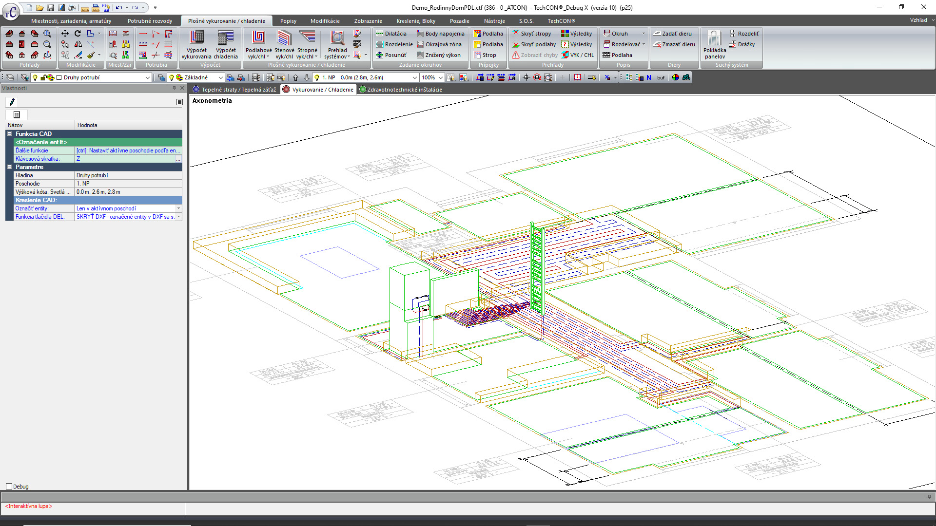
Ukážka projektov exportovaných z TechCONu do IFC:












